Page 37 - Каталог продукции
P. 37
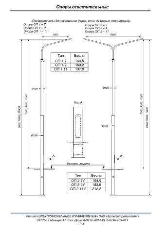
Опоры осветительные
Предназначены для освещения дорог, улиц, дворовых территорий.
Опора ОП 1 – 7 Опора ОП 2 – 7
Опора ОП 1 – 9 Опора ОП 2 – 9
Опора ОП 1 – 11 Опора ОП 2 – 11
1800 3600
Тип Вес, кг
ОП 1-7 140,5
ОП 1-9 169,2
ОП 1-11 197,8
Ø108 Ø108
7000, 9000, 11000 Вид А 7000, 9000, 11000
8800, 10800, 12800 Ø159 8800,10800, 12800
Ø159
А А
Уровень грунта
Тип Вес, кг
ОП 2-7У 154,9
ОП 2-9У 183,5
ОП 2-11У 212,2
Филиал «ЭЛЕКТРОМОНТАЖНОЕ УПРАВЛЕНИЕ №4» ОАО «Белэлектромонтаж»
247760 г.Мозырь-11 тел./факс 8-0236-209-449, 8-0236-209-451
37

