Page 38 - Каталог продукции
P. 38
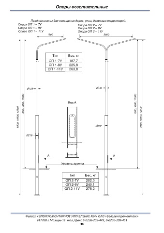
Опоры осветительные
Предназначены для освещения дорог, улиц, дворовых территорий.
Опора ОП 1 – 7У Опора ОП 2 – 7У
Опора ОП 1 – 9У Опора ОП 2 – 9У
Опора ОП 1 – 11У Опора ОП 2 – 11У
1800 3600
Тип Вес, кг
ОП 1-7У 187,7
ОП 1-9У 225,8
ОП 1-11У 263,8
Ø133 Ø133
7000, 9000, 11000 Вид А 7000, 9000, 11000
8800, 10800, 12800 Ø219 8800,10800, 12800
Ø219
А А
Уровень грунта
Тип Вес, кг
ОП 2-7У 202,0
ОП 2-9У 240,1
ОП 2-11У 278,2
Филиал «ЭЛЕКТРОМОНТАЖНОЕ УПРАВЛЕНИЕ №4» ОАО «Белэлектромонтаж»
247760 г.Мозырь-11 тел./факс 8-0236-209-449, 8-0236-209-451
38

